Weis Byggerådgivning
Din projekterende byggesagsrådgiver med ekspertise inden for myndighedsbehandling og lovgivning

Få hjælp til dit byggeri
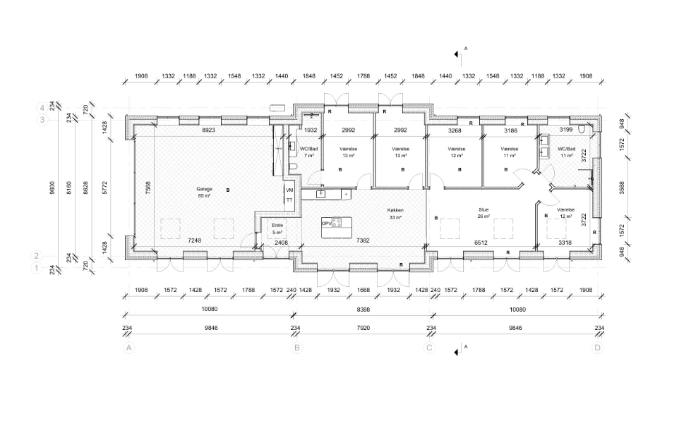
Vi laver alt inden for bygningstegninger, søger byggetilladelser hos kommunen, og klarer dialog og papirarbejde
- Klik ind på vores serviceydelser, og se om de matcher din situation, eller kontakt os
- Nederst på siden og under fanen "Alt du skal vide før du bygger", har vi samlet en række emner og scenarier, som vi ofte oplever skaber spørgsmål eller misforståelser






Forstå hvad der kan bygges på din ejendom
Undgå budgetbelastende dobbeltprojektering som følge af et afslag hos kommunen
Du som bygherre og ejer bærer ansvaret for dit byggeri, det er ikke de udførende håndværkere
Det er dig som ejer og bygherre der underskriver erklæringer til kommunen om at byggeriet overholder gældende lovgivning og er dokumenteret korrekt, det er derfor at det er så vigtigt at man allierer sig med en rådgiver, eller selv sætter sig 100% ind i de mange regler
Betyder byggetilladelse at kommunen har tjekket og godkendt alt ved mit byggeri?
Sådan er det ikke længere, i dag er ansvaret bygherres og man får ofte byggetilladelser hvor elementer af den ikke overholder bygningsreglementet
Servitutter
Hvad er servitutter, og hvorfor bør de gennemgås i forbindelse med dit byggeri
Strandbeskyttelse
Læs mere om hvad det er, hvilke udfordringer det kan medføre på din ejendom og hvilken instans der forvalter reglerne om strandbeskyttelse.
Bevaringsværdig eller fredet bygning
Forstå forskellen, hvad det stiller af krav til din ejendom og hvilke instanser der forvalter de 2 forskellige typer af kulturhensyn
Bygningsreglement og Lokalplan
Hvordan skal man forholde sig, og hvad bestemmer mest
Certificering og autorisation
Forstå hvilke dele af et byggeri som lovgivningen stiller krav til skal udføres og dokumenteres af personer med en bestemt uddannelse
Byzone, Landzone eller sommerhusområde
Det er de 3 slags zoneinddelinger som vi har i Danmark, men i hvilken slags zone befinder din ejendom sig, og hvad skal du være obs. på i din zoneinddeling?
Hvad må du bygge uden at søge byggetilladelse
Sekundær bebyggelse, på samlet maks. 50m2, ombygning af indretning af eksisterende bolig (enfamilieshus, rækkehus sommerhus og lejlighed), men bygningsreglementet skal stadig overholdes. Læs mere om hvilke fejl der typisk sker
LCA og energi beregning
Hvad er det, og hvorfor bør det laves inden det fysiske byggeri igangsættes
Dokumentation for konstruktioners bæreevne
Hvornår kræves der statisk dokumentation for en bygnings bæreevne, og skal den altid udarbejdes af en ingeniør?